REQUEST A TOUR If you would like to see this home without being there in person, select the "Virtual Tour" option and your agent will contact you to discuss available opportunities.
In-PersonVirtual Tour

Listed by Kerry Christenson • Coldwell Banker Borrego
$ 10,000
Est. payment | /mo
$ 10,000
Est. payment | /mo
Key Details
Property Type Vacant Land
Sub Type Other Residential Land
Listing Status Active
Purchase Type For Sale
MLS Listing ID CRNDP2509101
Property Sub-Type Other Residential Land
Source California Regional MLS
Property Description
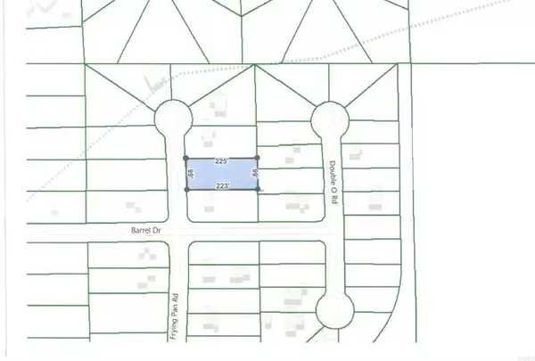
Large 0.51 acre residential lot located on a quiet cul de sac. Great location to build your desert retreat. Beautiful views of the desert and surrounding mountains.
Location
State CA
County San Diego
Area 92004 - Borrego Springs
Zoning CD
Exterior
View Hills, Other
Building
Lot Description Corners Marked
Others
Tax ID 1982301400
Special Listing Condition Not Applicable

© 2025 MLSListings Inc. All rights reserved.

"My job is to find and attract mastery-based agents to the office, protect the culture, and make sure everyone is happy! "


